
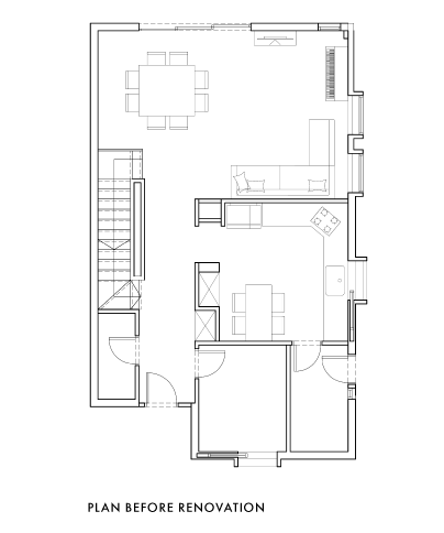
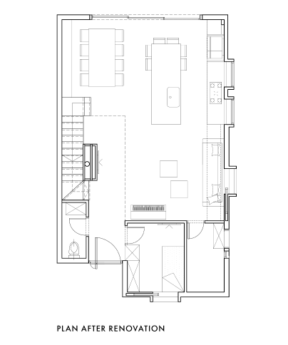
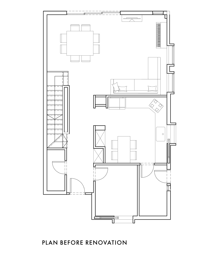
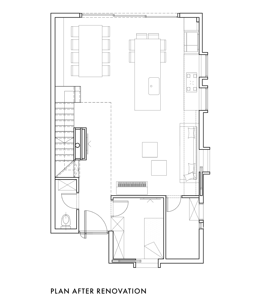
A comprehensive renovation within a private house in the uptown neighbourhood of "Afeka" in Tel Aviv. As part of the renovation the entrance level of the house was planned and designed according to the requirements of the client. The homeowner loves to cook and entertain and wanted to turn this level into a special, inviting space for entertainment. The kitchen became the heart of the house, it was enlarged and connected to a dining area. The entrance hall was connected to the new space, and now serves as a utility area for all members of the household. The living room was redefined as a designed unit with dual usage – common and private.
Photography: Itay Benit


















