
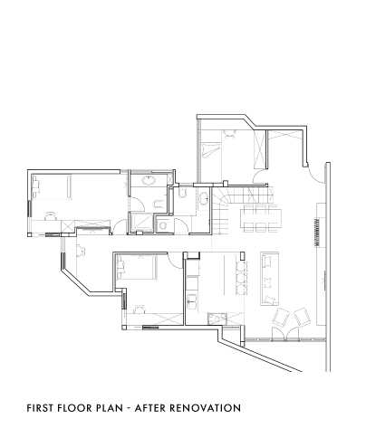
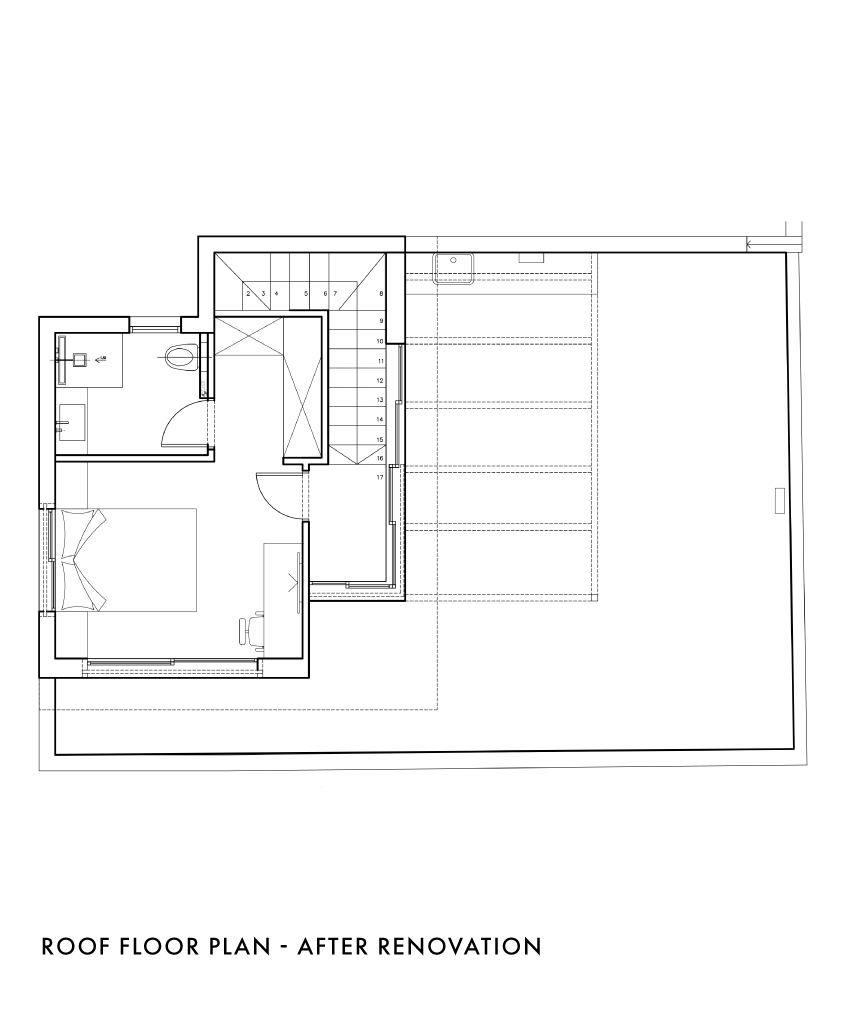
A double-floor four-room penthouse that was turned into five rooms to allow separate rooms for each child and an intimate, private parent unit. The old, claustrophobic roof-top storage room was enlarged and designed as a pleasant 40 m2 parent unit aside of which runs an inviting passage to the roof, where guests are hosted. The lower floor was renewed, and the living room redesigned. Each child now has a private room adapted to their needs and in addition a work and play space for the children. The work involved different carpentry features designed according to considerations of storage, everyday use and aesthetics.
Photography: Itay Benit






































