
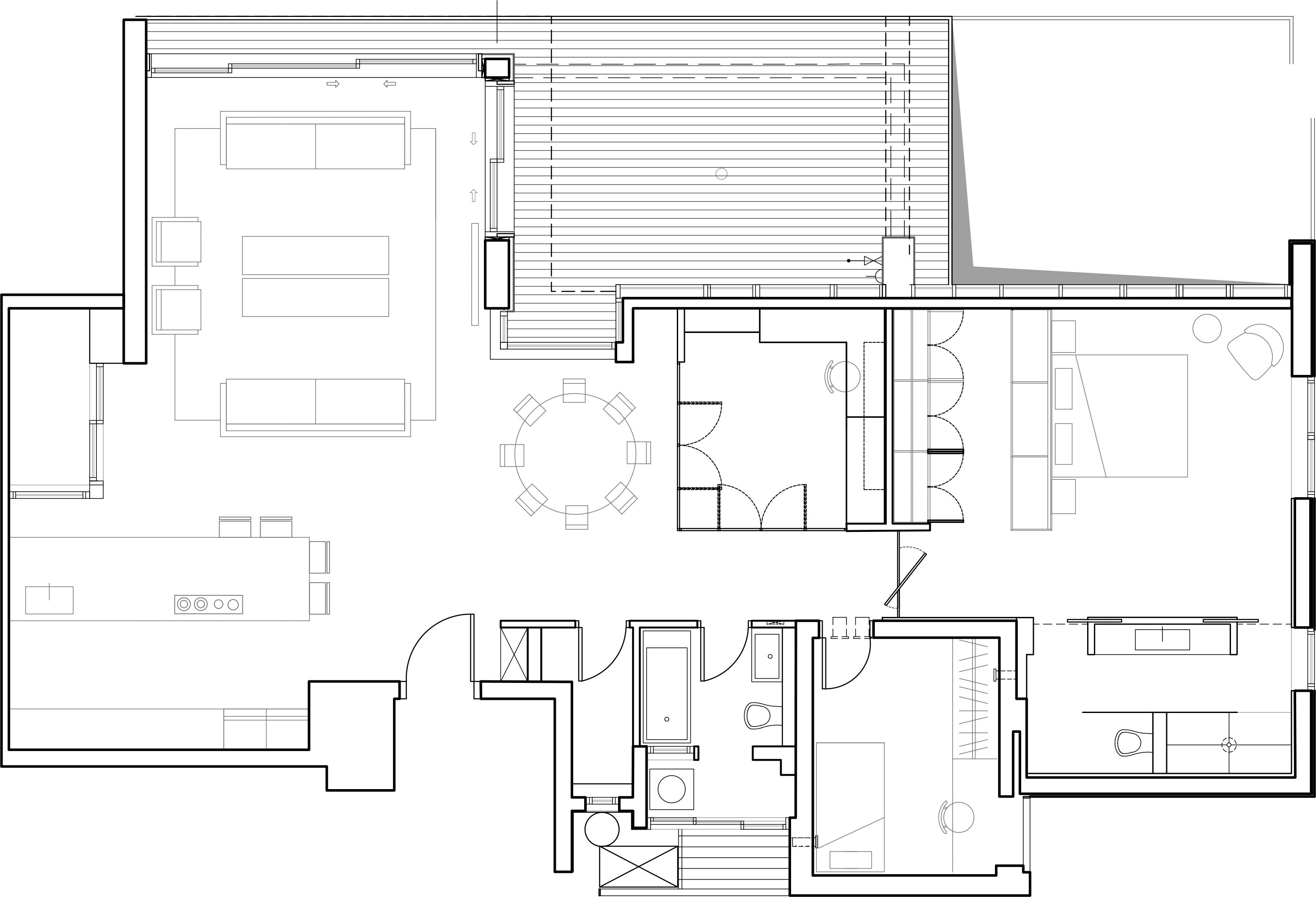
The apartment owners are a couple that loves to entertain. They bought a five-room apartment and sought to eliminate one room in favor of a spacious four-room apartment. Their plan included a large entertainment area for many guests that combines several functions: a pleasant, well-equipped kitchen, a living room and a dining corner adjacent to a semi-open study. The study was designed to be semi-open in compliance with the client’s wish, seeing as he works from home. It can be joined to the entertainment space thanks to the use of Belgium steel. The result is a “transparent” space with bespoke carpentry that gives the space a light feeling yet also provides all the functionality of a study. The bedroom is divided by the head of the bed, which separates it from the “walk-in closet,” thereby providing an additional storage area and lending the space a sense of lightness. The entire apartment was planned and designed in a style that combines furniture pieces with sentimental value and a clear, refined, fresh and warm style, with simple, precise lines and a monochrome palette.
Management and supervision: Arik Spiegel
Photography: Itay Benit





















