
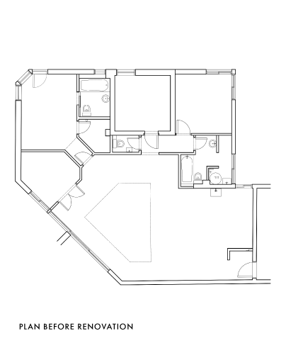
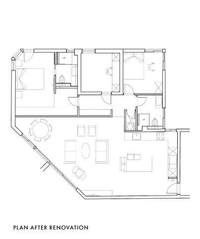
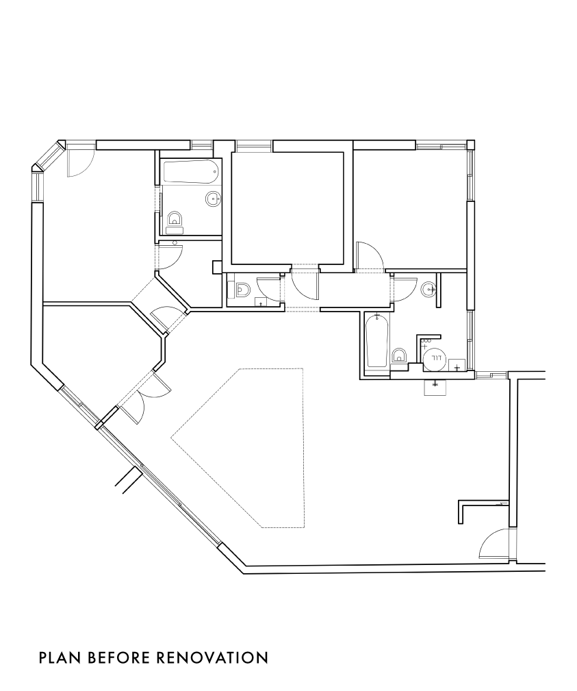
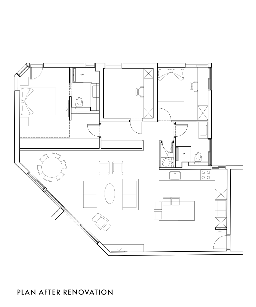
When the clients’ three children grew up and left home, they decided it was time to leave their Jerusalem home in favor of the center of the country, to make the most of life and still be close to the children and grandchildren. They bought a five-room apartment which they wanted to turn into four spacious rooms. The result is an apartment with inviting hosting spaces, a pleasant, well-equipped kitchen, a “hotel-grade” bedroom and, of course, a room for the grandchildren. The apartment was planned and designed in a clear, refined, fresh and warm style, with simple, precise lines and a monochrome color scale.
Photography: Itay Benit
































