
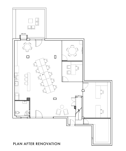
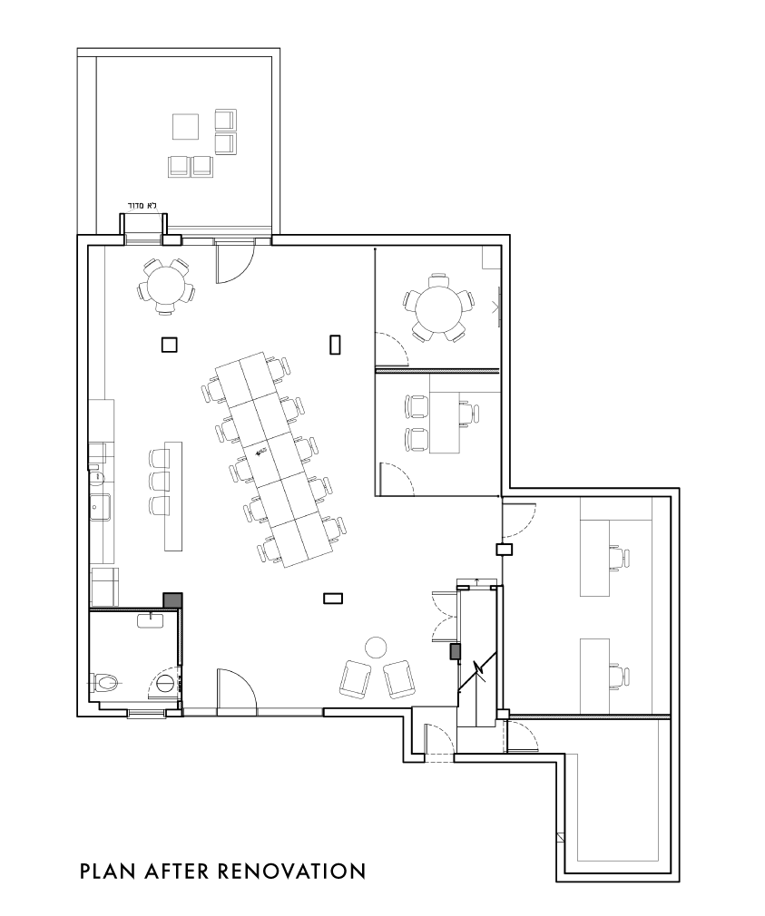
Planning and designing an office floor which was divided by many plaster walls. The new plan was designed according to a program specified by the client, involving an open space with many workstations to allow flexibility and mobility. The space contains three offices that are closed with glass walls covered by wallpaper designed by an illustrator to convey the company’s style. The mix of materials and colors produce a harmonious, pleasant and inviting space.
Photography: Itay Benit













