
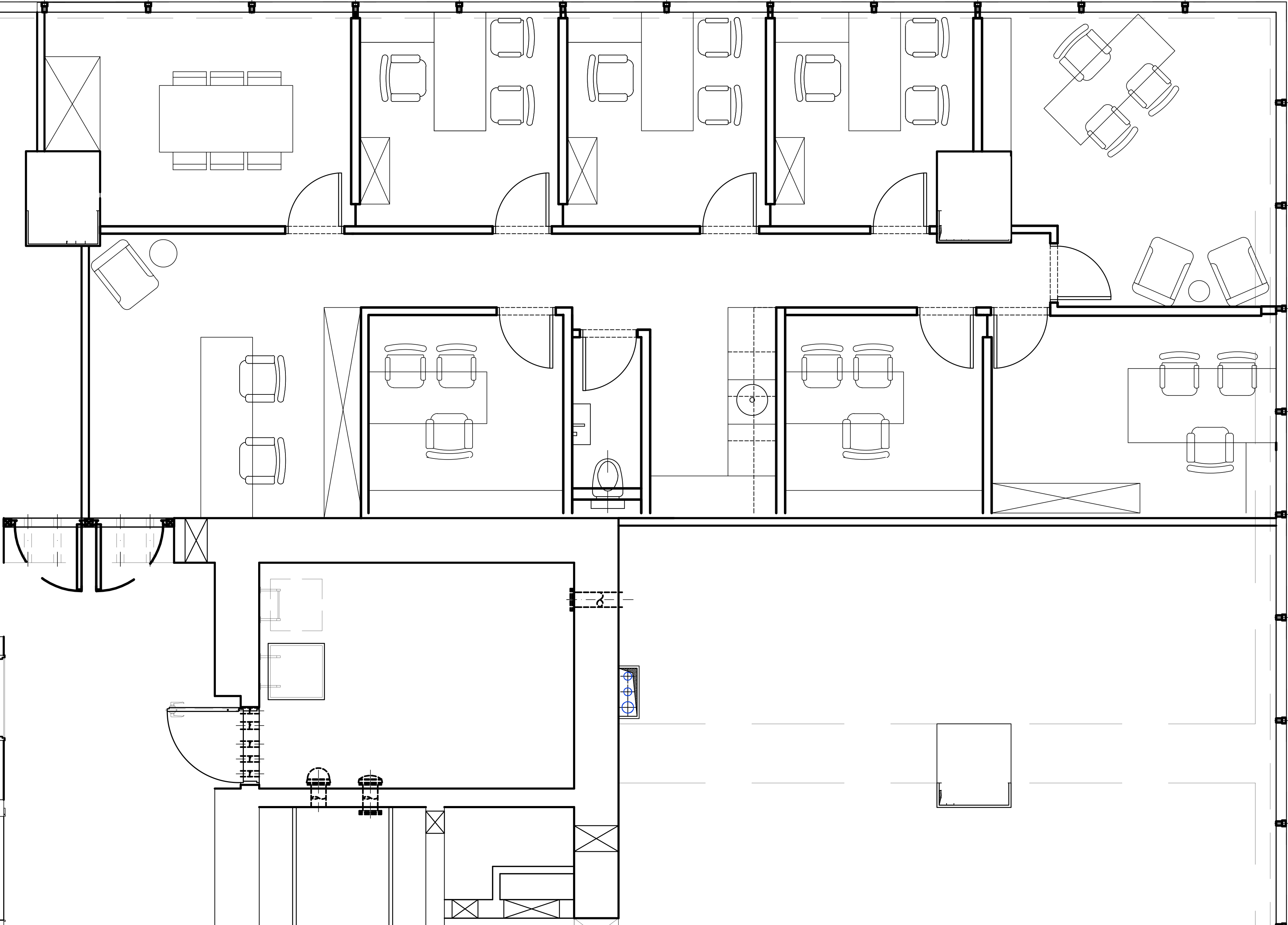
Planning and designing a quarter of an office building floor in a tower in Tel Aviv. The space was divided according to the client’s specification to contain offices for sub-renters, a common meeting room, bathroom and kitchenette. The design concept chosen for the project is industrial and formal, including ceilings with exposed electrical, telephone/internet and A.C. systems. The lines themselves are clear and clean. The color scheme is uniform – black, grey, green and yellow – and is complemented by the office owner’s artworks, which are integrated within the space.
Photography: Itay Benit
Execution: A.Weiss Construction


















