
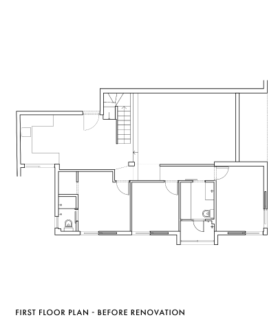
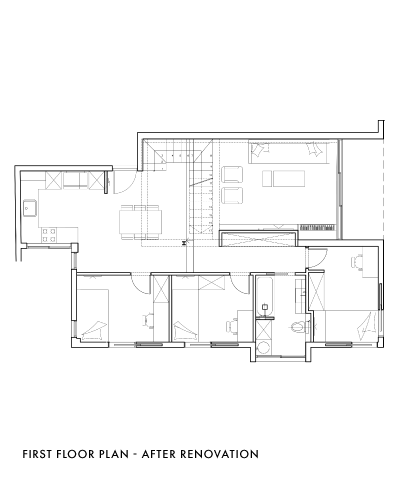
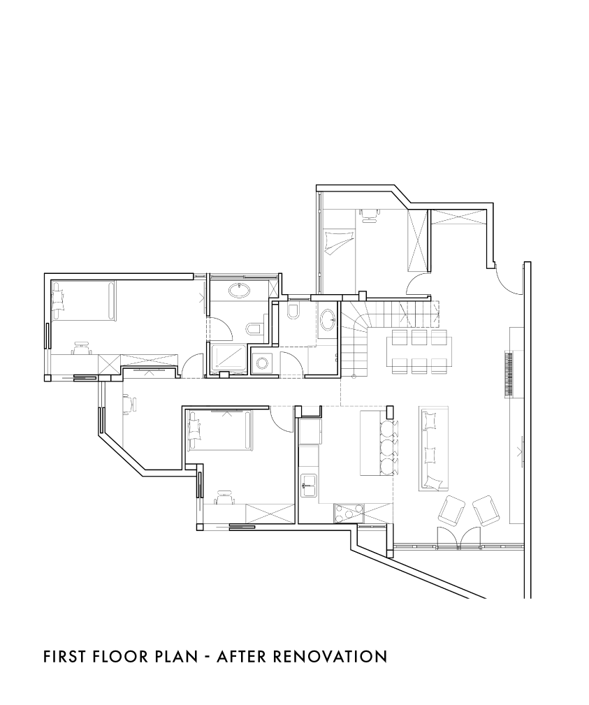
A four-room penthouse purchased a decade ago when it was suitable for the needs of the family. The children have since grown up and the parent’s preferences have changed. Considering this, the plan gave the apartment a new design in a clean, timeless European style, combining a minimalistic slant and homely warmth. The building rights on the roof floor were used to construct a parent unit and adjoining open space for entertaining. For this purpose a division was kept between the parent unit and the exit onto the roof. The staircase in the original space created an obstacle between the kitchen and living room, leaving a closed and dark space. In the new plan the staircase, now designed in minimalistic lines both to reduce its visual presence and to connect the living room and kitchen, was moved. This change called for a new plan for the ceiling to which structural elements in the form of steel beams were added. These were painted light grey to balance between the industrial look and the sense of lightness – all this without concealing the beauty of the material.
Photography: Itay Benit




































