
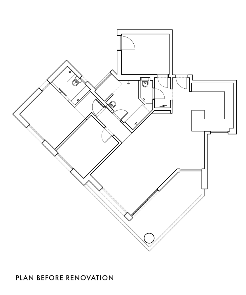
A four-room apartment for a young family. The basic, oblique layout of the property, initially deemed problematic, became the solution: the wall stretching along it was widened, thereby providing both clear separation between the common and private spaces and a clear and balanced division between the dinning corner and the living room. For this purpose a bespoke carpentry unit was ordered to serve as a library, television shelf and storage units with sliding doors and open shelves for decorative objects. The clean lines, minimalistic palate and parquet floor create a sense of harmony and their combination is the basis for a pleasant entertaining space in the style of an urban loft, which the clients had envisioned. Extending the kitchen to the entry area allowed room for comfortable and useful work-tops while maintaining a sense of a clear and inviting space characteristic of the space as a whole.
Photography: Itay Benit


























