
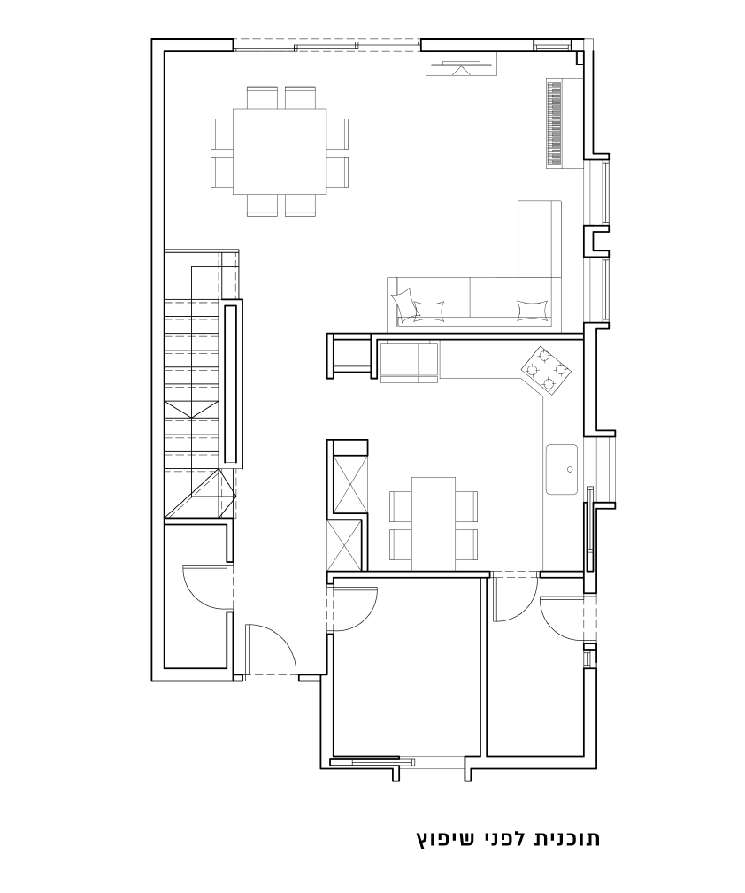
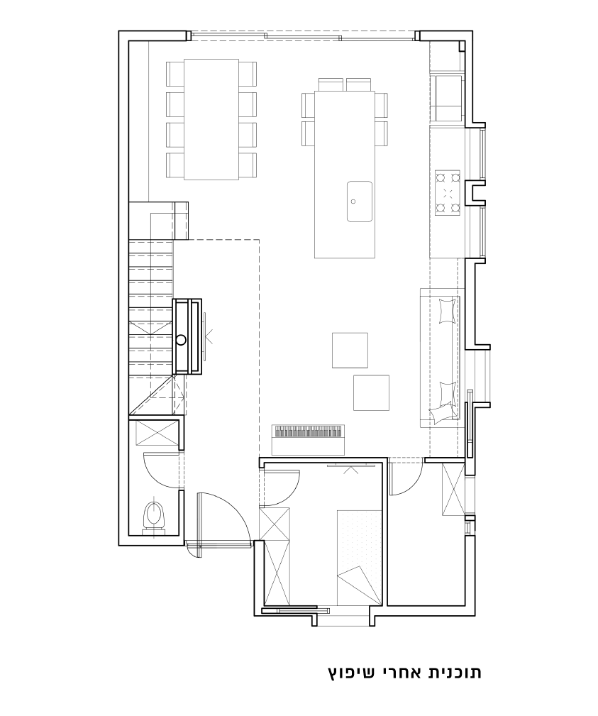
שיפוץ רחב ההיקף בבית פרטי בשכונת אפקה היוקרתית בתל אביב. במסגרת השיפוץ תוכננה ועוצבה מחדש בהתאם לצרכי הלקוח קומת הכניסה. בעלת הבית אוהבת לבשל ולארח ורצתה להפוך את הקומה לחלל מיוחד מזמין ומארח. המטבח הפך להיות לליבת הבית, הוגדל וחובר לפינת האוכל. מבואת הכניסה חוברה אל החלל החדש, המהווה כעת חלל שירות לכלל הבית. הסלון הוגדר מחדש כיחידה עיצובית בעלת שימוש דואלי פרטית וציבורית.
צילום: איתי בנית
















