
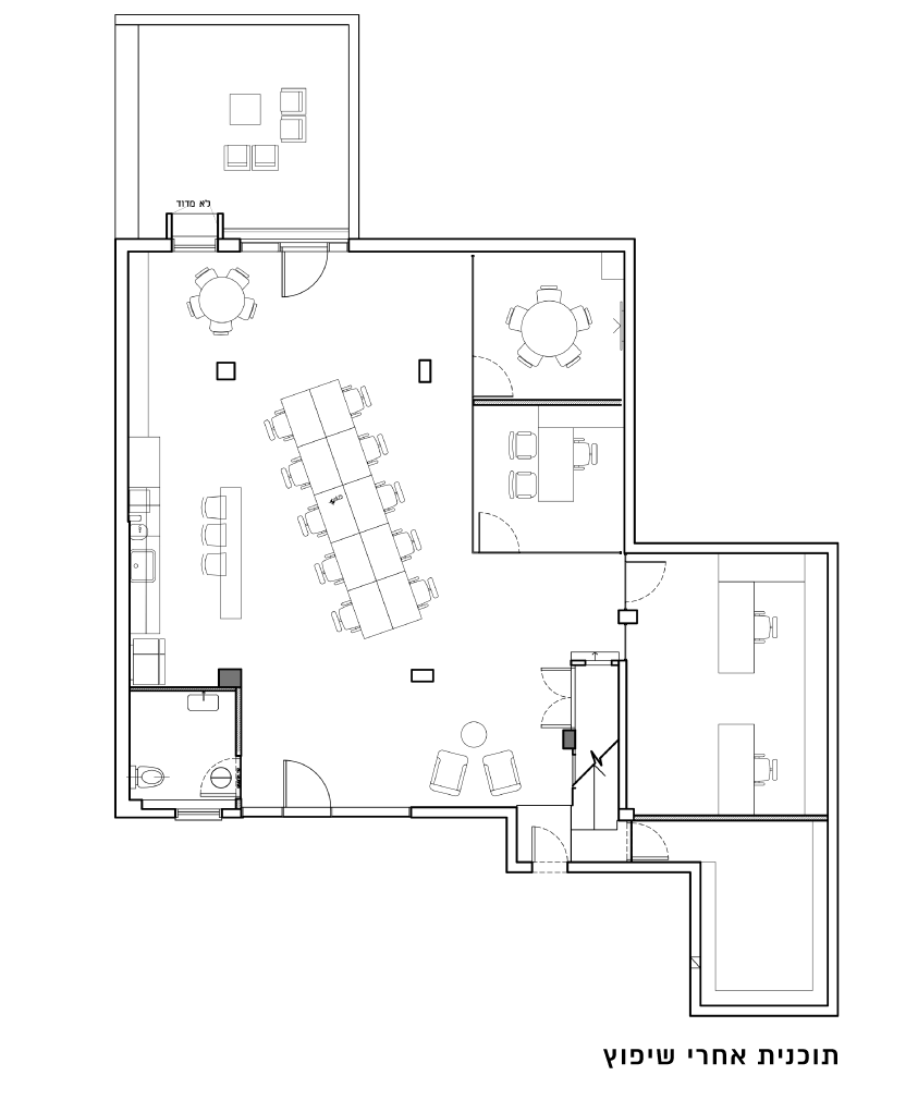
תכנון ועיצוב קומת משרדים אשר הייתה מחולקת במחיצות גבס רבות, התכנון החדש נבנה על פי פרוגרמה שנתקבלה ע"י הלקוח ונבחר כ- OPEN SPACE ובו מספר רב של עמדות עבודה אשר יוצרת גמישות וניידות בעמדות העבודה. בחלל יש 3 חדרי עבודה סגורים ע"י מחיצות זכוכית ע"ג הזכוכית הודבק טפט שיוצר בהתאמה אישית לאופי החברה ע"י מאייר. שילוב החומרים והצבעים יצרו חלל הרמוני מזמין ונעים.
צילום: איתי בנית











