
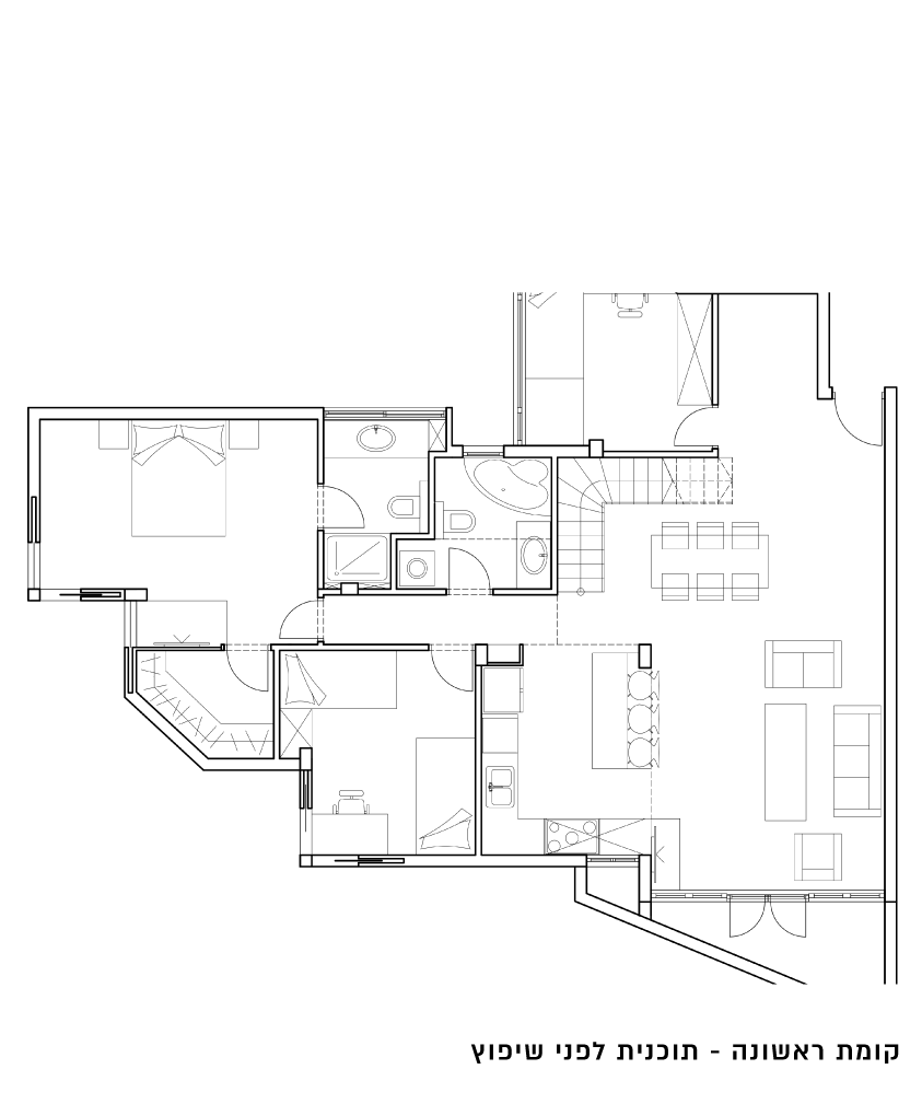
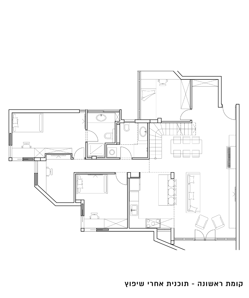
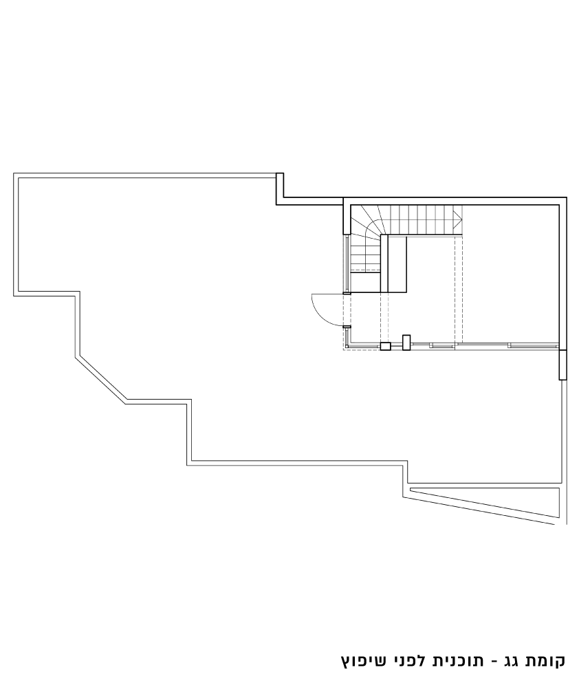
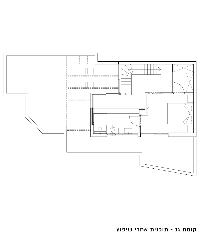
דירת ארבעה חדרים דו-מפלסית שהורחבה לדירת חמישה חדרים, לצד רצונם של הילדים בחדרים נפרדים, הורי המשפחה ביקשו להקים לעצמם מרחב פרטי ואינטימי. במסגרת זו תוכננה מחדש קומת הגג הקלסטרופובית והמגובבת חדרון אחסון שהיה בה בעבר הורחב ליחידת הורים נעימה בגודל 40 מ"ר ולצדה מעבר מזמין אל הגג, המשמש לאירוח. קומת המגורים חודשה, הסלון עוצב מחדש, כל ילד זכה לחדר פרטי המותאם לצרכיו ועל כך נוסף חלל עבודה ומשחקים לילדים, העבודה כללה פריטי נגרות שונים בהתאמה אישית לצורכי אחסון, שימוש יומיומי ואסתטיקה.
צילום: איתי בנית


































