
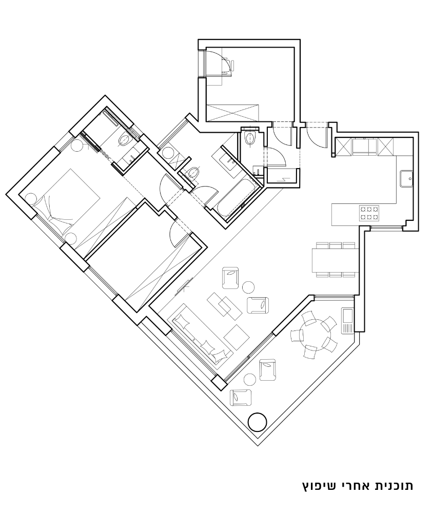
דירה בת ארבעה חדרים, המיועדת למשפחה בראשית דרכה. תוואי הבסיס האלכסוני של הנכס, שנתפש תחילה כבעיה, הפך לפתרון: הקיר שנמתח לאורכו עובה, ובכך סיפק הן הפרדה ברורה בין חלל האירוח לחללים הפרטיים והן חלוקה ברורה ומאוזנת בין פינת האוכל לבין הסלון. לצורך זה הוזמנה גם יחידת נגרות בהזמנה אישית, המשמשת ספרייה ועמדת טלוויזיה, וכוללת חללי אחסון עם דלתות הזזה לצד מדפים פתוחים לפריטי נוי. הקווים הנקיים, הצבעוניות המינימליסטית ורצפת הפרקט יוצרים תחושה הרמונית, והשילוב ביניהם איפשר לבסס חלל אירוח נעים בסגנון לופט אורבני, כפי שראו הלקוחות בעיני רוחם. הרחבת המטבח לאזור הכניסה איפשרה להציב בו משטחי עבודה נוחים ושימושיים – ולצד זאת, לבסס את תחושת המרחב הנקי והמזמין המאפיינת את הבית כולו.
צילום: איתי בנית
























