
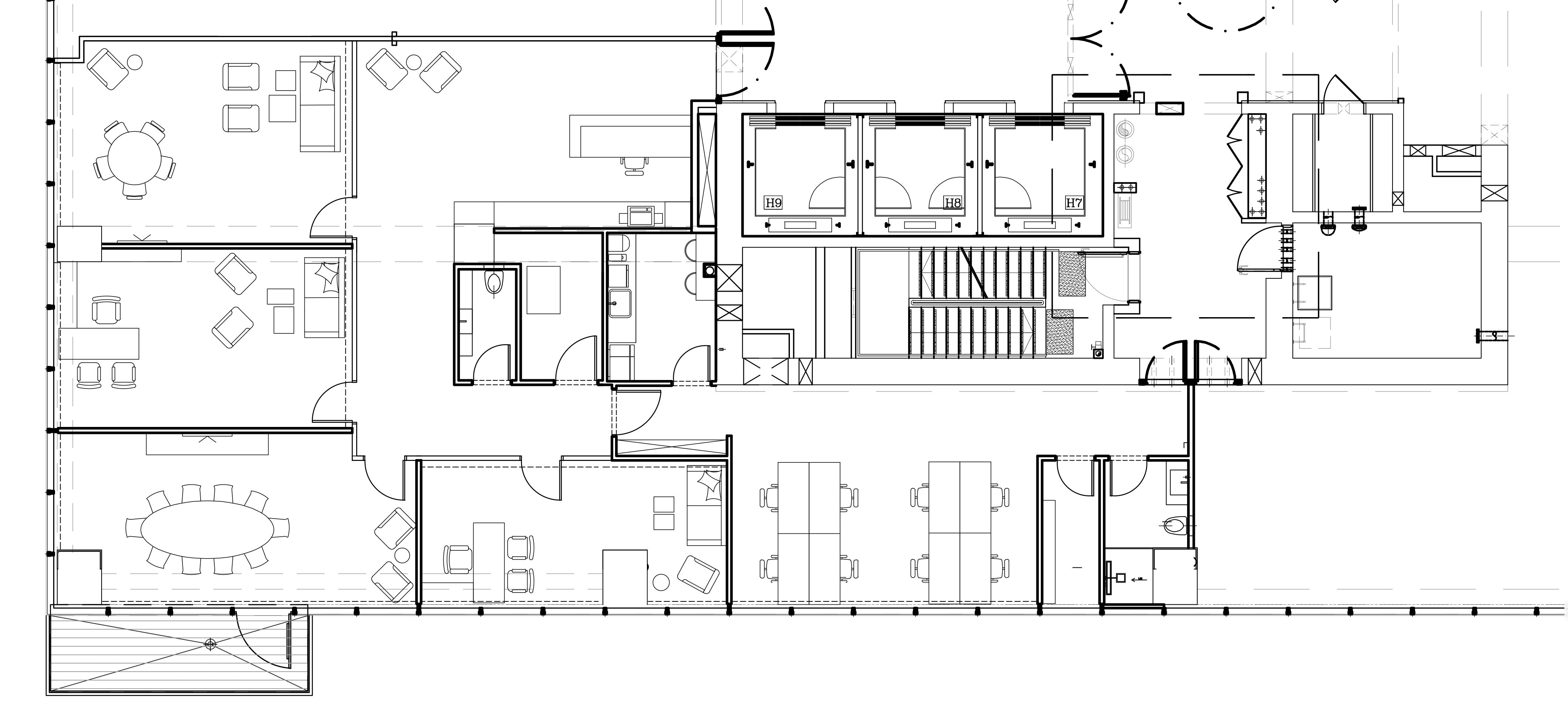
תכנון ועיצוב קומת משרדים במגדל בתל אביב. לאור פרוגרמה שסיפק הלקוח, החלל חולק לשני אזורים: אזור משרדי מנהלים וקבלת לקוחות, ולצדו אופן-ספייס בעל כניסה נפרדת. לאזור קבלת הלקוחות ומשרדי המנהלים מובילה מבואת כניסה מרשימה, שממנה נשקף נוף העיר. תמהיל העיצוב של אזור זה משלב בין הפורמלי והבלתי פורמלי בדמות שולחנות עבודה בקו נקי ומינימליסטי לצד סלון אירוח מזמין ללקוחות החברה. בין משרדי המנהלים נקבע חדר ישיבות המשקיף גם הוא אל הנוף האורבני. הקו העיצובי בכללותו משקף את עקרונות החברה כפי שהגדיר הלקוח: שקיפות, אמינות והרמוניה. החומרים שנבחרו לעבודה משרים על החלל אווירה ביתית ומזמינה.
צילום: איתי בנית
ניהול וביצוע: אריק שפיגל


































