
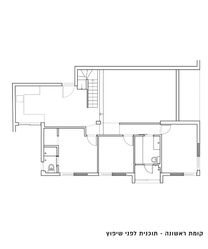
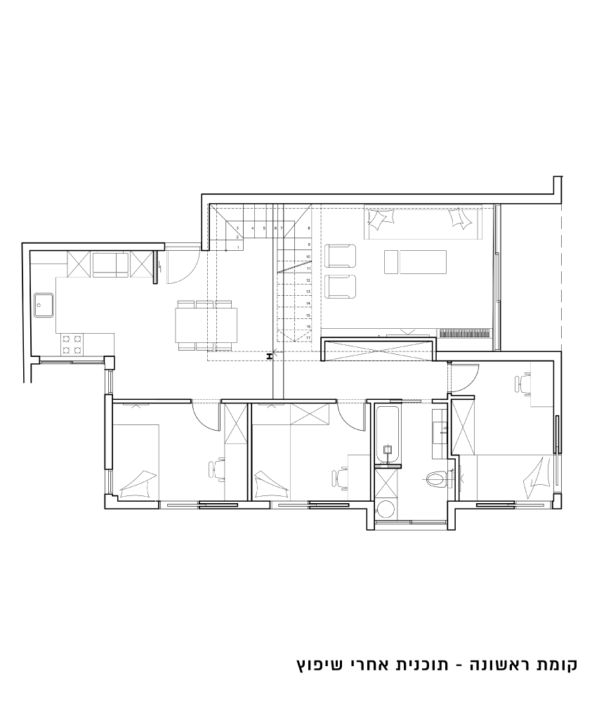
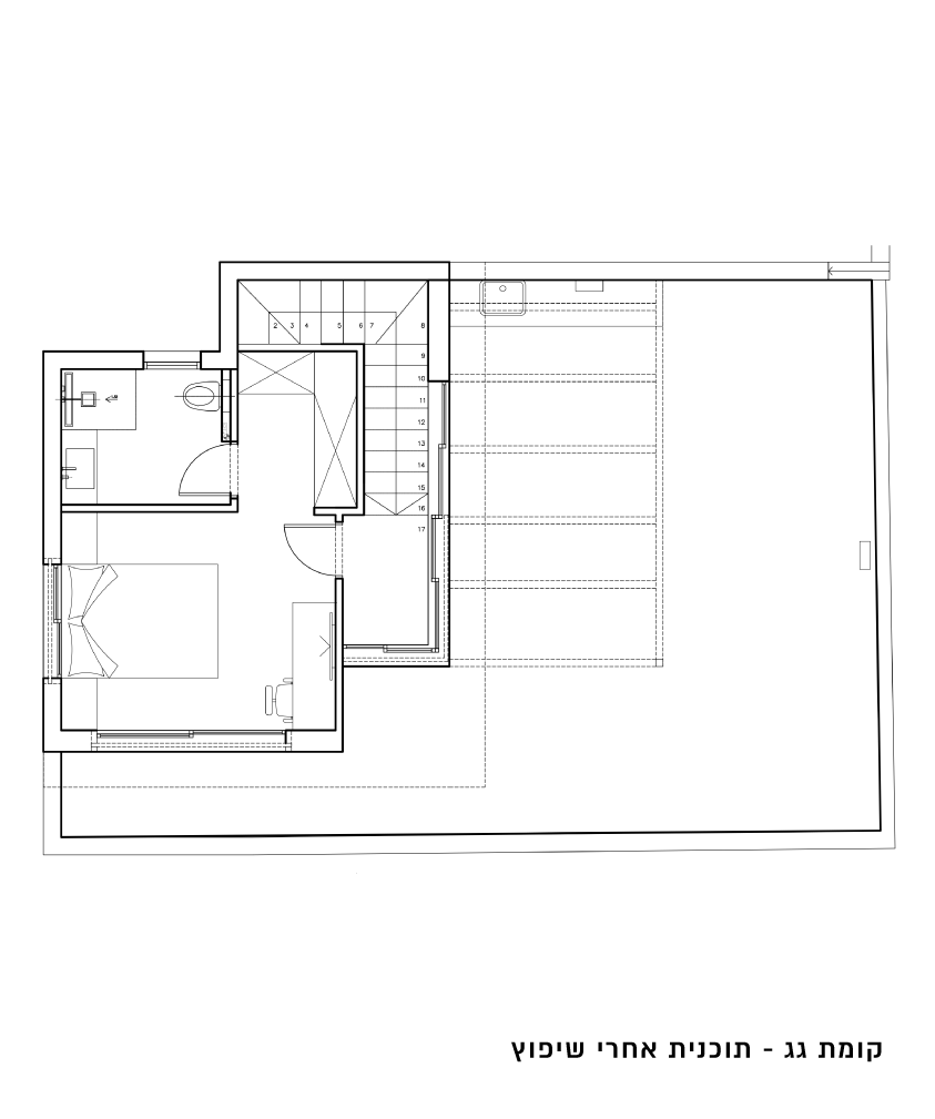
דירת גג של ארבעה חדרים, שנרכשה לפני עשר שנים והתאימה בשעתו לדרישות המשפחה. מאז התבגרו הילדים, וגם העדפותיהם של ההורים השתנו. לאור זאת עוצבה הדירה מחדש בקו אירופי נקי ואל-זמני, המשלב נטייה מינימליסטית וחמימות ביתית. זכויות בנייה במפלס הגג נוצלו לשם הקמה של יחידת הורים, שלצדה נשמר אזור אירוח פתוח. לצורך זה נשמרה גם ההפרדה בין יחידת ההורים לבין היציאה אל הגג. מיקומו של גרם המדרגות בחלל המקורי יצר חסימה בין המטבח לסלון, והותיר מרחב סגור ואפלולי. במסגרת התכנון המחודש הועבר גרם המדרגות ממקומו ועוצב מחדש בקווים מינימליסטיים, בין היתר כדי לצמצם את נוכחותו הוויזואלית בחלל הבית ולחבר בין הסלון למטבח. השינוי דרש תכנון מחודש של התקרה ושילוב אלמנטים קונסטרוקטיביים בדמות קורות פלדה. אלה נצבעו באפור בהיר כדי לאזן בין המראה התעשייתי לבין תחושה של קלילות – וכל זאת, בלי להסתיר את יופיו של החומר.
צילום: איתי בנית
































